何といっても資産性の有る駅近マンション!
「グランド・ガーラ代田橋」3階、南東角部屋。2DK。
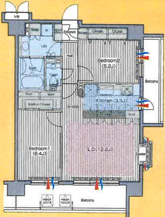
バルコニーも南側9.42㎡・東側5.55㎡ございます。
通勤通学に大変便利!行動範囲も広がります!
京王線代田橋駅徒歩1分。
京王線明大前駅 徒歩11分。
京王井の頭線 新代田駅徒歩15分。
近隣の商業施設、公共施設へもアクセス良!
スーパー、コンビニ、ドラッグストア、郵便局、公園まで徒歩5分圏内です!

お気に入りに追加する
|
| 所在地 | 東京都世田谷区大原2丁目 グランド・ガーラ代田橋 | ||
|---|---|---|---|
| 交通 | 京王線 代田橋駅 徒歩1分 |
||
| 物件番号 | R260301 | ||
|
何といっても資産性の有る駅近マンション! 「グランド・ガーラ代田橋」3階、南東角部屋。2DK。 バルコニーも南側9.42㎡・東側5.55㎡ございます。 通勤通学に大変便利!行動範囲も広がります! 京王線代田橋駅徒歩1分。 京王線明大前駅 徒歩11分。 京王井の頭線 新代田駅徒歩15分。 近隣の商業施設、公共施設へもアクセス良! スーパー、コンビニ、ドラッグストア、郵便局、公園まで徒歩5分圏内です!
|
| 築年月 | 2005/01 | 新築/中古 | 中古 |
|---|---|---|---|
| 面積 | 62.52m² | 計測方式 | 壁芯 |
| バルコニー | 14.97m² | 向き | 南東 |
| 建物階数 | 地上14階 地下1階 | 部屋階数 | 3階 |
| 部屋/区画番号 | 3階 | 総戸/区画数 | 195 |
| 建物構造 | SRC | ||
| 管理形態 | 全部委託 管理人常駐 | ||
| 間取内容 |
DK15.2畳 洋室6.4畳 洋室5.2畳 |
||
| 駐車場 | 取引態様 | ||
| 引渡/入居時期 | 相談 | 現況 | 居住中 |
| 周辺環境 | |||
| 設備・条件 | ガスコンロ システムキッチン 食器洗い乾燥機 追い焚き 洗髪洗面化粧台 浴室乾燥機 ユニットバス 温水洗浄便座 エアコン 室内洗濯機置き場 CATV オートロック 都市ガス 公営水道 エレベータ 宅配ボックス 駐輪場 | ||
| 物件番号 | R260301 | ||
| 自社物 | 自社物 | 状態 | 売出中 |